建筑设计:Ninetynine
类型:办公建筑内部装修
地点:荷兰 阿姆斯特丹
面积: 75 m²
年份:2019年
摄影:Ewout Huibers Ewout Huibers
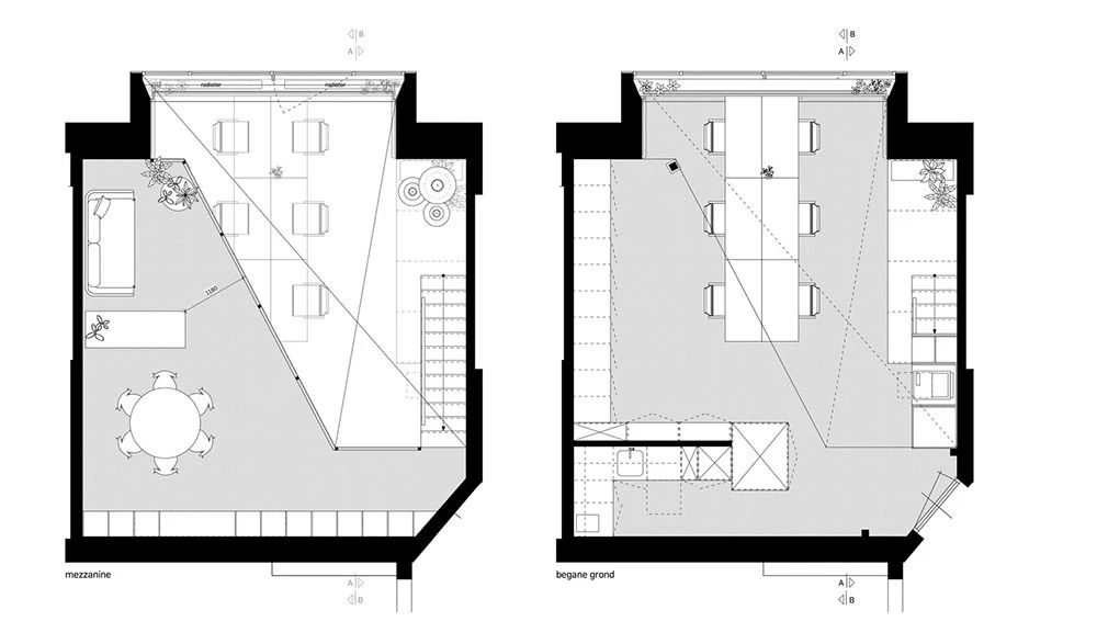
荷兰阿姆斯特丹Ninetynine办公室
来自建筑事务所的描述:在设计自己的工作场所时,建筑师希望它能反映我们作为一个小型设计工作室的工作方式。通过绘制活动流线图并将这些内容在空间中进行划分,我们在“员工工作”区域和进行创作的区域之间进行了明确的划分,并设计了定制的家具物品,帮助建筑师组织好日常的事务,能够让建筑师在创造和组织、突破界限和实现事情之间进行平衡。
区域。办公室位于阿姆斯特丹市中心的一个大型前医院内,建筑本身有75平方米,包括一个30平方米的夹层,自然光充足。工作区位于底层,有一个6人工作岛,其中的Lensvelt Studio Duo办公桌由Marcel Wanders设计,而夹层的创作区则结合了材料库、会议桌和软座,其中的Artifort C683沙发由Kho Liang Ie设计。
抽屉。沿着夹层地板下的墙面,有一个定制的文件柜,上面有100个抽屉,用来收纳和展示不断变化的材料色板和所有正在进行的项目图纸。薄薄的硬板抽屉承载着材料板,使其易于移动。
连接。夹层的钢结构是该单元建筑的一部分。新建的胶合板制成的楼梯不仅连接了两层楼,而且还结合了储藏室、壁橱和打印站等功能。连接楼梯雕塑与主空间的低矮平台,成为人们可以坐下来讨论的首选区域。
配色方案。设计的配色方案尽量以中性为主,从而作为类似尚待创作的白色画布。为了提亮灰色色调,建筑师引入了“绿色盒子”。位于夹层下方,包含了一个书架,用来展示灵感来源,同时又隐藏了主储藏室和茶水间等功能。为了避免过量的自然光,建筑师安排了一簇纸罩灯,其中传统的Formakami灯由Jamie Hayon设计,创造了温暖、有情调的灯光环境。
『BDC·黑石信德』专注工装十余年,致力于成都办公室装修、写字楼装修、厂房装修、教育空间装修、店铺装修等商业空间装修设计。为客户提供专业、高效、品质一体化装修设计服务。致力于塑造人性化商业空间,助力您的企业品牌价值。Tel:17502830762
